Voor deze ruime geschakelde vrijstaande woning zijn we op zoek naar nieuwe bewoners!
Ruime en netjes onderhouden woning in Grubbenvorst.
De woning (woonopp. 115 m²| Inhoud 471 m³) is gelegen op een ruim perceel van 202 m² met fraai aangelegde achtertuin met een garage met plaats voor een auto of voor extra opbergruimte.
De woning heeft een doordachte indeling met ruime kamers, waaronder een royale woonkamer (circa 22 m²), een slaapkamer en een badkamer op de begane grond.
Op de verdieping bevindt zich een tweede slaapkamer en tevens de technische ruimte van de woning.
Indeling
Begane grond
Via de overdekte entree komt u binnen in de hal.
De hal biedt toegang tot de eet/woonkamer, toilet, trapopgang naar de eerste verdieping en de meterkast.
De hal is voorzien van een doorlopende houtlook rubberlaminaatvloer met vloerverwarming en loopt door over de gehele begane grond (vloerverwarming in woonkamer en keuken).
Deze prachtige woonkamer is het hart van de woning. Dankzij de royale schuifpui geniet u van een overvloed aan daglicht en een sfeervolle verbinding met de tuin. Het vele glas zorgt voor een open en ruimtelijk gevoel, waardoor woon- en eetkamer naadloos in elkaar overlopen en ook de keuken optimaal wordt verlicht. De ruimte is uitgerust met een comfortabele airconditioning, zodat u zowel in de zomer als in de winter verzekerd bent van een aangenaam klimaat. Vanuit de woonkamer heeft u directe toegang tot de keuken, de tuin en de hal. Via deze hal bereikt u de badkamer, de slaapkamer en de garage, waardoor alle voorzieningen praktisch en dichtbij gelegen zijn. de woon/eetkamer is tevens voorzien van een ruime en praktische provisiekast gesitueerd onder de trap.
De open keuken is uitgerust met een modern keukenblok met diverse keukenapparatuur, onder andere een 5-pits gas kookplaat met wok-brander, combi magnetron, afzuigkap, vaatwasser, magnetron, koelkast en ruim voldoende kastruimte voor de nodige opbergruimte.
Vanuit de woonkamer heeft u toegang tot de hal met slaap en badkamer. De slaapkamer op de begane grond is een heerlijke plek om je even terug te trekken. het grote raampartij zorgt voor een warme sfeer, de ruimte is ruim opgezet waardoor er voldoende ruimte is om een kast(en) te plaatsen. Dankzij het raam kijkt u zo de achtertuin in, en met het de gordijnen bepaalt u zelf hoeveel licht of privacy je wilt. Door de natuurlijke ventilatie voelt de kamer altijd fris aan – kortom, een comfortabele en rustige plek.
Badkamer
Deze volledig betegelde badkamer is niet alleen strak afgewerkt, maar ook heerlijk comfortabel. Voor extra warmte is er daarnaast een radiator aanwezig. Verder is de badkamer voorzien van een douche met cabine, een ligbad, een wastafel met bijpassend meubel, een toilet en mechanische ventilatie die zorgt voor een frisse luchtcirculatie. Door de volledige betegeling is de badkamer bovendien makkelijk in onderhoud, ideaal voor dagelijks gebruik.
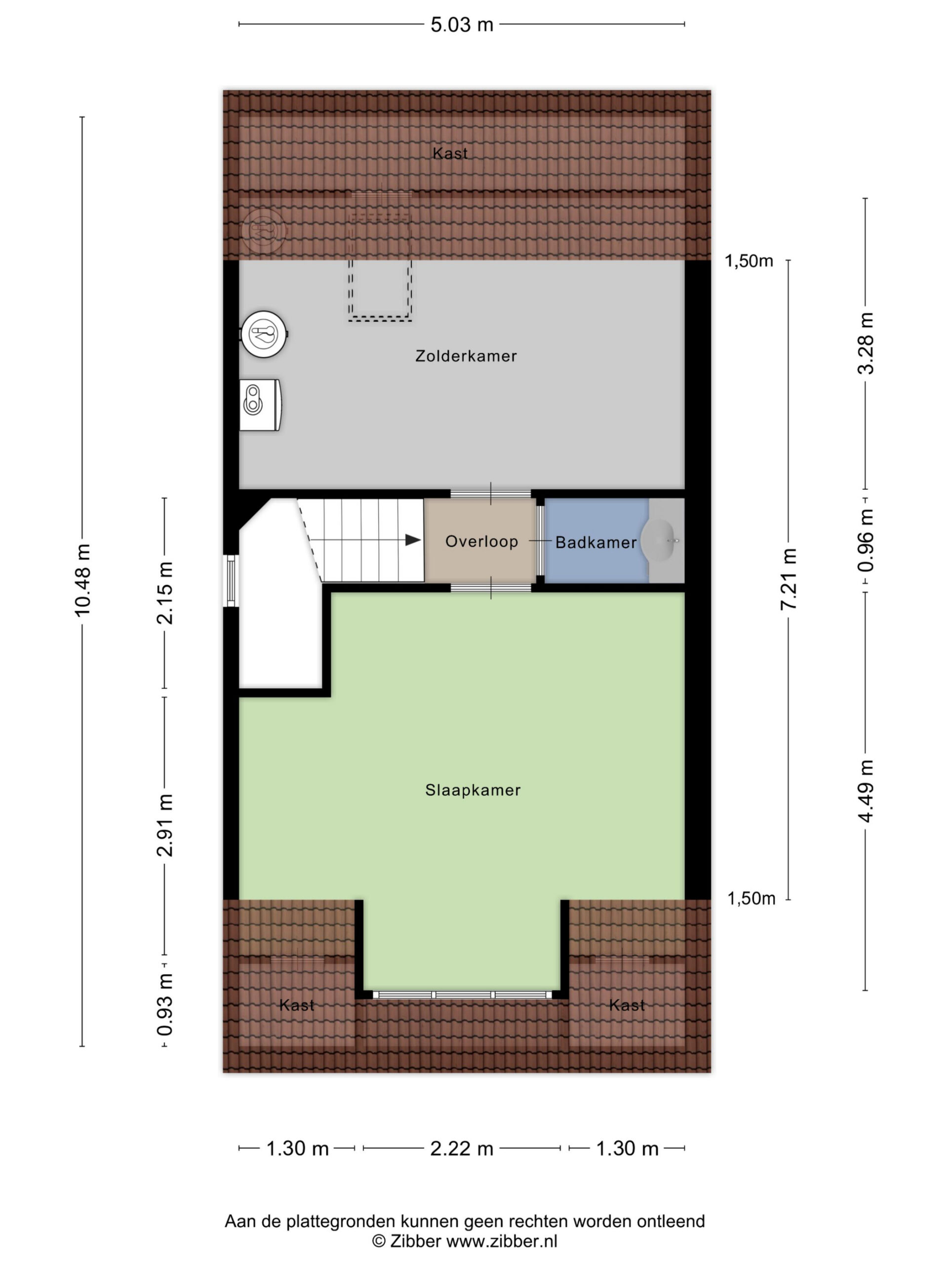
Eerste verdieping
De eerste verdieping is te bereiken middels de trapopgang welke is gesitueerd in de ontvangsthal. Op de eerste verdieping bevindt zich een 2 ruime slaapkamer die perfect is in te richten als logeerkamer, hobbyruimte of thuiskantoor. De kamers beschikken over een raampartij die zorgt voor natuurlijke ventilatie en een prettige lichtinval. Daarnaast is op deze verdieping ook de technische installatie netjes weggewerkt. Een praktische en veelzijdige ruimte die u helemaal naar eigen wens kunt benutten. De eerste verdieping heeft tevens een extra aansluiting voor toilet, douche of wastafel zoals deze nu is ingericht.
Tuin
De fraai aangelegde achtertuin is gelegen op het zuidoosten, waardoor u hier vrijwel de hele dag van de zon kunt genieten. Direct achter de woning bevindt zich een betegeld terras welke samen met de groene borders de perfecte combinatie zijn voor uw tuin. Aan de woning zit een overkapping welke perfect is voor het stallen van uw tuin gereedschap en ook daar vind u tevens de achterom van de woning.
Garage
De royale garage (circa 19 m²) is bereikbaar via zowel de voorzijde van de woning als de hal in de woning. De ruimte is ideaal voor het stallen van fietsen of gereedschap en biedt daarnaast praktische extra opbergmogelijkheden. Tevens kunt u hier ook indien gewenst uw auto parkeren. De garage vloer is voorzien van een tegelvloer en heeft tevens de aansluitingen voor het witgoed.
Locatie
Grubbenvorst is een gezellig dorp met een compleet centrum met diverse winkels, restaurants en terrassen. Ook heeft Grubbenvorst een bruisend verenigingsleven met o.a. een voetbalclub, jong Nederland en een harmonie. Aan de rand van Grubbenvorst zijn prachtige bossen met wandelroutes waar u heerlijk kunt ontspannen en kunt genieten van de mooie natuur. De woning is gelegen op korte afstand van de basisschool en op fietsafstand van verschillende winkels. Daarnaast zijn de dichtstbijzijnde uitvalswegen zoals de A73 en A67 slechts op een paar minuten rijden.
Kortom een heerlijke plek om te wonen!
Interesse in de fantastische woning? We plannen graag een bezichtiging.


