Voor deze zeer ruime twee-onder-een-kap woning zijn we op zoek naar nieuwe bewoners!
Ruime en netjes onderhouden woning in Horst.
De woning (woonopp. 179 m²| Inhoud 797 m³) is gelegen op een ruim perceel van 369 m² met fraai aangelegde tuin met riante overkapping en grote garage.
De woning heeft een doordachte indeling met ruime kamers, waaronder een royale woonkamer (circa 26 m²), een eetkamer (circa 14 m²) en een garage op de begane grond (circa 23 m²) . Op de verdieping bevinden zich 4 slaapkamers met een badkamer en een vaste trap naar de tweede verdieping.
Indeling
Begane grond
Via de entree komt u binnen in de hal. De hal biedt toegang tot de eetkamer, het gastentoilet, de meterkast, de kelder en de trapopgang naar de eerste verdieping.
De ruime eet- en woonkamer ademt warmte en comfort, mede dankzij de prachtige houtenvloer die een huiselijke sfeer creëert.
De grote raampartijen, en de grote overkapping aan de woning welke direct grenst aan de woonkamer, zorgt samen met de woon en eetkamer voor een royale hoeveelheid daglicht en een prettig ruimtelijk gevoel.
De authentieke en originele ensuite deuren delen de woon en eetkamer in twee en voegt een karaktervolle uitstraling toe aan de ruimte.
De woon en eetkamer zijn beide voorzien van praktische en grote muurkasten
De keuken is uitgerust met een keukenblok met diverse keukenapparatuur, onder andere een 4-pits gas kookplaat, afzuigkap, vaatwasser, oven en een koelkast.
De keuken is tevens voorzien van praktische onder en bovenkastjes welke voldoende opbergruimte bieden.
De keuken geeft u toegang tot de ruime berging en eet/woonkamer.
De bijkeuken is direct gesitueerd achter de keuken en is praktisch in gebruik, hier vind u een extra wastafel, een extra deur die toegang biedt tot de riante oprit en toegang tot e berging.
De bijkeuken is tevens voorzien van de witgoedaansluitingen.
De ruime berging is uitermate geschikt voor extra opbergmogelijkheden of voor werk aan huis en is geheel naar eigen wens in te richten.
En geeft u tevens ook toegang tot de garage en de bijkeuken.
De riante garage is via een poort middels de oprit te bereiken en via de grote berging, de garage biedt veel extra opbergruimte of is uitermate geschikt voor het parkeren van uw auto.
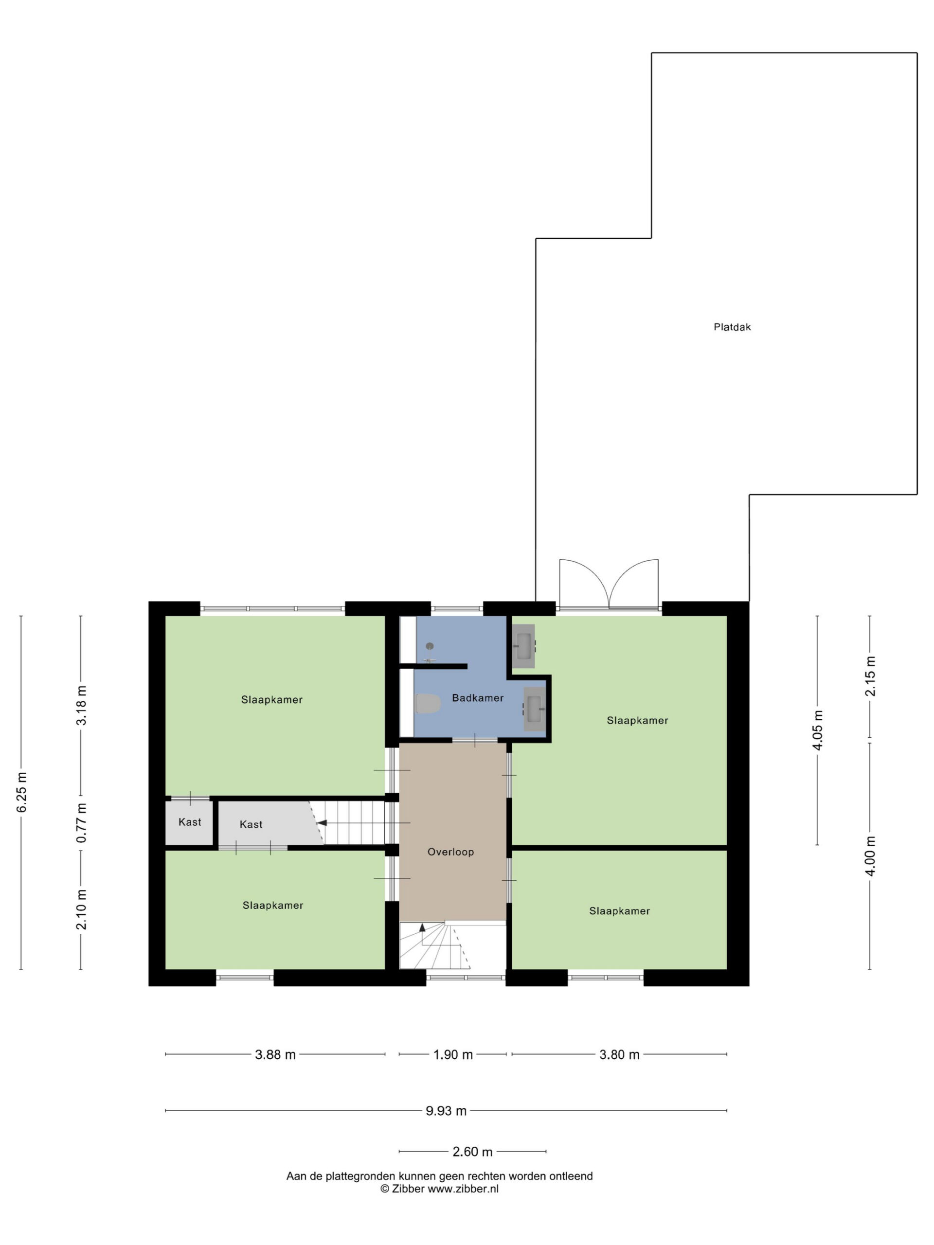
Eerste Verdieping
De overloop deze biedt toegang tot 4 slaapkamers en een badkamer. Slaapkamer I: 3.18 x 3.68 slaapkamer II: 2.10 x 3.68, slaapkamer III: 3.80 x 4.05 en slaapkamer IV: 3.80 x 2.10. De slaapkamers zijn voorzien van een doorlopende laminaatvloer en voorzien van hardhouten kozijnen met dubbele beglazing, radiatoren en natuurlijke ventilatie.
De badkamer is praktisch ingericht en van alle gemakken voorzien. Er is een comfortabele inloopdouche, een toilet en een wastafel met bijpassend meubel dat zorgt voor extra opbergruimte. Dankzij zowel natuurlijke als mechanische ventilatie blijft de ruimte fris en goed geventileerd. De badkamer is geheel betegeld en is daardoor praktisch en onderhoudsvriendelijk in gebruik.
Tweede Verdieping
De tweede verdieping is bereikbaar via een vaste trap en biedt volop extra opbergruimte of voor het realiseren van een extra slaap of werkkamer. De tweede verdieping is de stelplaats van de cv-ketel.
Tuin
Deze prachtig gelegen tuin op het zuidwesten biedt u de perfecte plek om optimaal van de zon te genieten.
Dankzij de riante overkapping kunt u hier in alle seizoenen comfortabel buiten zitten, of het nu voor een gezellig diner met vrienden is of een rustige avond met een goed boek.
De tuin is smaakvol ingericht met diverse groene borders, die zorgen voor een natuurlijke en sfeervolle uitstraling.
Bovendien is er een praktische berging aanwezig, ideaal voor het netjes opbergen van tuingereedschap, fietsen of extra spullen.
Zo combineert deze tuin stijl en comfort met gebruiksgemak.
Een plek waar binnen en buiten naadloos in elkaar overgaan – klaar voor jarenlang woonplezier.
Locatie
De woning bevindt zich in het gezellige en levendige dorp Horst, dat beschikt over een compleet en sfeervol centrum met diverse winkels, knusse restaurants en uitnodigende terrassen.
Horst heeft een bruisend verenigingsleven, met onder andere een voetbalclub, Jong Nederland en een muziekvereniging.
Aan de rand van Horst liggen uitgestrekte bossen met wandelroutes, waar u volledig tot rust kunt komen en kunt genieten van de prachtige natuur.
De woning heeft een uitstekende ligging, met de basisschool op korte loopafstand en de middelbare school en diverse winkels eenvoudig per fiets bereikbaar.
Bovendien zijn de uitvalswegen A73 en A67 binnen enkele minuten te bereiken.
Kortom een heerlijke plek om te wonen!
Interesse in de fantastische woning? We plannen graag een bezichtiging.


