*GEEN BEZICHTIGINGSMOGELIJKHEID MEER!*
Op zoek naar een idyllische plek waar rust, ruimte en privacy samenkomen? Deze vrijstaande woning aan de Knikkerdorpweg 2 in Well biedt het allemaal. Gelegen op een royaal perceel geniet u hier van optimale vrijheid, terwijl de woning volop mogelijkheden biedt om geheel naar eigen smaak te moderniseren.
De grote, praktisch ingedeelde ruimtes zorgen voor een comfortabele woonbeleving en maken het eenvoudig om uw eigen woonwensen te realiseren. Dankzij de riante indeling en de aanwezige bijgebouwen is dit object bovendien uitermate geschikt voor werken aan huis of het houden van dieren.
Een unieke kans om een woning te verwerven die niet alleen charme en potentie uitstraalt, maar ook de perfecte balans biedt tussen wonen, werken en genieten van het buitenleven.
Indeling
Begane grond Via de entree komt u binnen in de hal, die toegang biedt tot de woonkamer, meterkast, garderobe, kelder en trapopgang naar de eerste verdieping.
• Woonkamer: ruim en licht (3.48 x 5.82 m), met een aansluiting voor een haard die zorgt voor extra sfeer. Aansluitend bevindt zich een multifunctionele kamer, ideaal als werk- of speelruimte.
• Eetkamer & keuken: de eetkamer leidt naar de royale leefkeuken, een fijne plek om samen te tafelen met familie en vrienden. De open indeling maakt dit een praktische en gezellige leefruimte. De huidige keuken is ingericht met een wandopstelling voorzien van diverse inbouwapparatuur.
• Bijkeuken: bereikbaar via een loopdeur vanuit de keuken, voorzien van witgoedaansluitingen en extra bergruimte.
• Achterzijde: hier vindt u de badkamer, het toilet, de serre en de berging. Vanuit deze ruimtes heeft u directe toegang tot het terras en de tuin.
Eerste verdieping
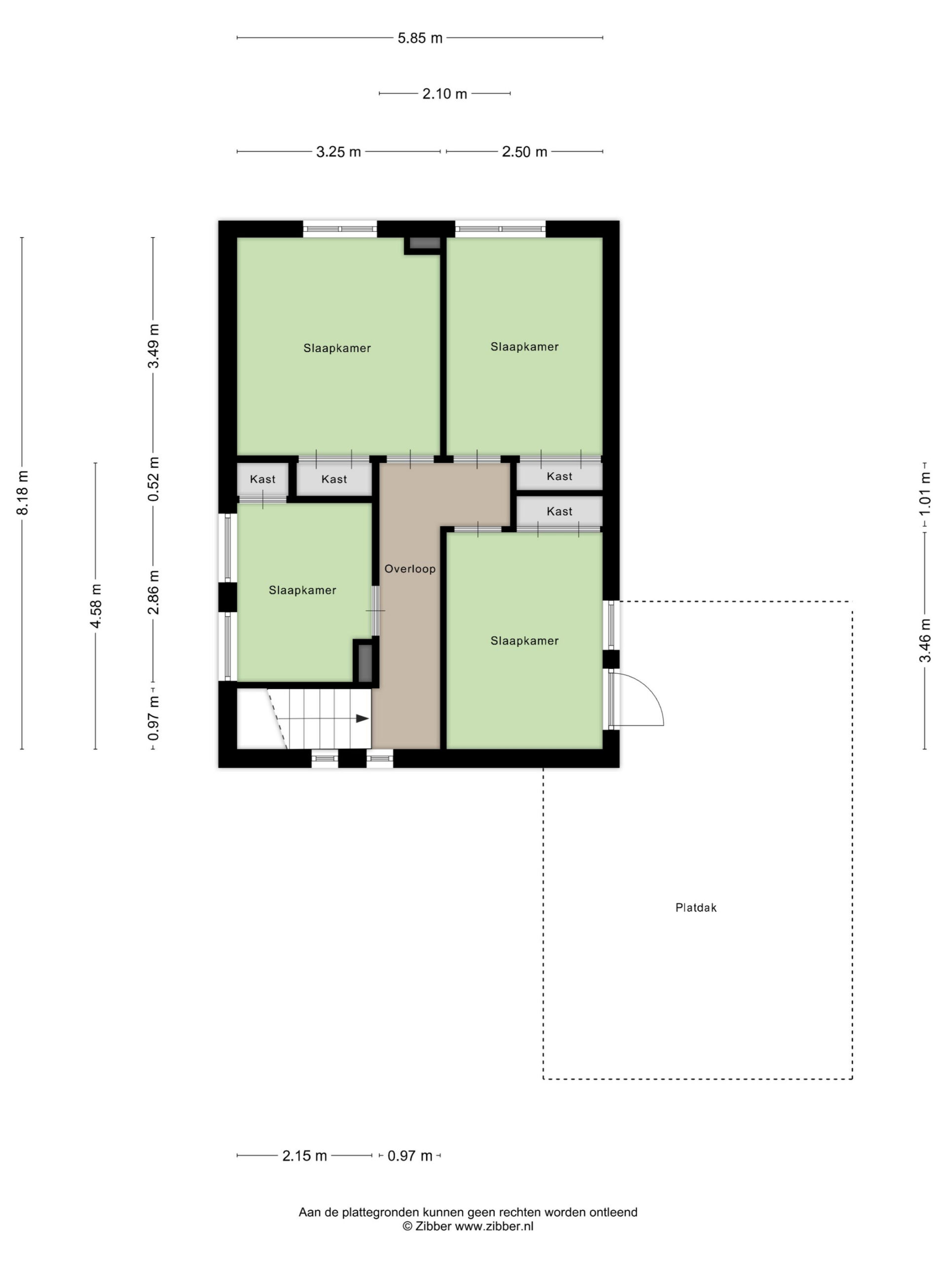
De eerste verdieping beschikt over vier slaapkamers en een luik naar de bergzolder.
• Slaapkamer I: 3.49 x 3.25 m
• Slaapkamer II: 3.49 x 2.50 m
• Slaapkamer III: 3.83 x 2.50 m
• Slaapkamer IV: 2.86 x 2.15 m
Alle kamers zijn voorzien van vloerbedekking, radiatoren, natuurlijke ventilatie en praktische muurkasten. Dit maakt ze stuk voor stuk functioneel en comfortabel, met voldoende mogelijkheden om naar eigen wens in te richten.
Tuin
De tuin rondom de woning is werkelijk een buitengewone eyecatcher. Het perceel bestaat uit drie afzonderlijke kavels, waarvan een deel een agrarische bestemming heeft. Met een totale oppervlakte van ruim 10.000 m² biedt dit terrein ongekende mogelijkheden.
Of u nu droomt van een royale siertuin, het houden van dieren, het realiseren van extra bijgebouwen of simpelweg wilt genieten van de rust en vrijheid van het buitenleven—hier kan het allemaal. Dankzij de gunstige ligging kunt u de hele dag door van de zon profiteren. Er zijn volop plekken te creëren om te ontspannen, buiten te eten of gezellig samen te komen. Dit maakt de tuin tot een waar paradijs voor iedereen die houdt van ruimte, natuur en privacy.
Garage
De woning beschikt over een ruime garage van 6.99 x 3.49 m, uitgerust met een elektrische poort. Deze veelzijdige ruimte kan voor uiteenlopende doeleinden worden gebruikt:
• als veilige parkeerplek voor uw auto
• als hobbyruimte
• of als praktische werkruimte aan huis
Dankzij de royale afmetingen biedt de garage volop vrijheid en gemak, passend bij de veelzijdigheid van het gehele perceel.
Deze woning biedt niet alleen een uitzonderlijke woonbeleving, maar ook een prachtige ligging in het sfeervolle dorp Well.
Well is een charmant kerkdorp in de gemeente Bergen, gelegen in Noord-Limburg aan de Maas. Met circa 2.450 inwoners ademt het dorp een gemoedelijke en landelijke sfeer, terwijl het toch uitstekend bereikbaar is via de N271 richting Venlo en Nijmegen en de N270 richting Venray en Eindhoven.
Het dorp ligt in het hart van Nationaal Park De Maasduinen, een uitgestrekt natuurgebied dat geliefd is bij wandelaars, fietsers en natuurliefhebbers. Daarnaast kent Well een rijke historie, met als blikvanger het middeleeuwse Kasteel Well, dat omringd wordt door een schilderachtige gracht en tuinen. Recreatieve mogelijkheden zijn er volop: van varen op de Maas tot ontspannen bij het nabijgelegen Leukermeer, een populaire recreatieplas.
Wie kiest voor wonen in Well, kiest voor een unieke combinatie van rust, natuur en historie, met alle dagelijkse voorzieningen binnen handbereik. Het is de perfecte plek voor wie houdt van het buitenleven, maar toch verbonden wil blijven met de regio.
Interesse in deze fraaie woning? Bel ons voor een afspraak!


