Wonen in het groene en gemoedelijke Venray? Gratenstraat 19 is uw nieuwe thuis!
Deze ruime en goed onderhouden twee-onder-een-kap woning uit 1971 biedt u alle comfort en rust die u zoekt.
Gelegen in een kindvriendelijke omgeving met volop privacy, is dit een ideale plek voor gezinnen.
Met een royale woonoppervlakte van 109 m², een perceel van 215 m² en een inhoud van 449 m³, geniet u hier van ruimte, licht en een doordachte indeling.
Indeling
Bij binnenkomst via de entree komt u in een ruime hal die toegang biedt tot het moderne gastentoilet, de meterkast, garderobe en de sfeervolle woonkamer.
Het toilet is gedeeltelijk betegeld en voorzien van een toilet, radiator en fonteintje.
De hal en woonkamer zijn voorzien van een vloerbedekking wat een warme sfeer geeft aan de ruimtes, wat zorgt voor een harmonieuze en eigentijdse uitstraling.
De royale woonkamer geeft u zicht op de voortuin welke veel privacy biedt en staat in directe verbinding met eetkamer/keuken.
Het middelpunt van de woonkamer is toch wel de sfeervolle houtkachel die in de koude en donkere dagen zorgt voor warmte en sfeer in de woonkamer.
De woonkamer is tevens voorzien van een open trap die in verbinding staat met de eerst verdieping.
Aan de achterzijde van de woning bevindt zich een comfortabele leefkeuken, waar koken en samenzijn centraal staan.
De keuken is uitgerust met verschillende inbouwapparatuur, waaronder een inductiekookplaat met afzuiging, een vaatwasser, koelkast en diverse onder en bovenkastjes voor uw nodige opbergruimte.
van comfort en functionaliteit.
Eerste Verdieping
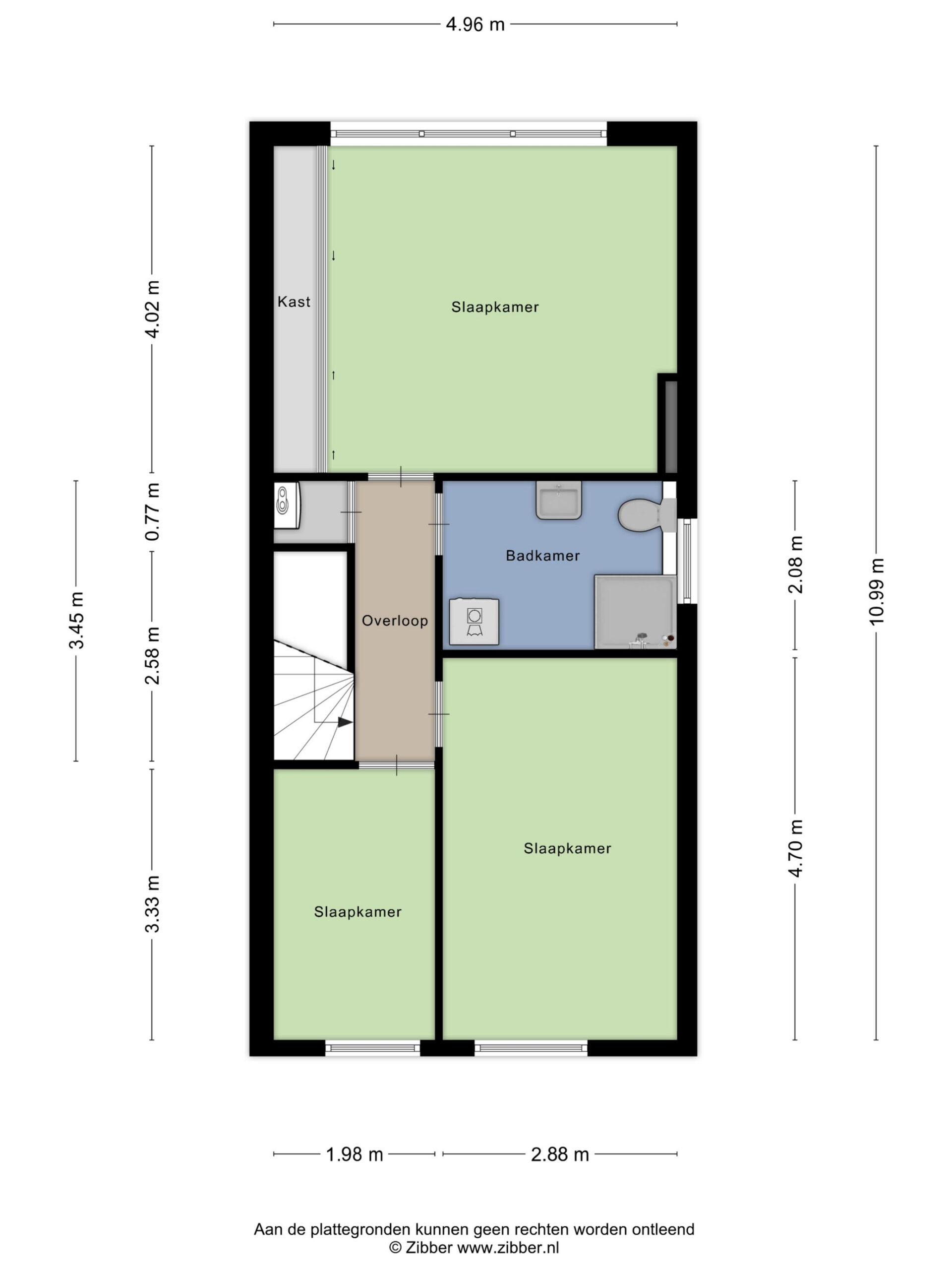
Op de eerste verdieping bevinden zich drie comfortabele slaapkamers en een ruime moderne badkamer.
• Slaapkamer I (ca. 4.02 x 4.96 m) voorzien van een inbouwkast
• Slaapkamer II (ca. 2.88 x 4.70 m)
• Slaapkamer III (ca. 3.33 x 1.98 m)
Alle slaapkamers zijn afgewerkt met een vloerbedekking en beschikken over, radiatoren en ramen voor natuurlijke ventilatie—een combinatie
De volledig betegelde badkamer is voorzien van een douche met cabine, een toilet, een wastafel met meubel en de aansluitingen voor uw witgoed apparaten.
Door de volledige betegeling is de badkamer erg onderhoudsvriendelijk in zijn gebruik.
Tuin
De achtertuin is gelegen op het noordwesten, waardoor u hier kunt genieten van zon en buitenleven.
Dankzij de gunstige ligging vormt deze tuin een heerlijke plek om te ontspannen, te tuinieren of gezellig buiten te eten.
Naast de sfeervolle buitenruimte biedt de tuin ook praktische voorzieningen, zoals een aanpandige garage.
Ideaal voor het opbergen van fietsen, tuingereedschap of andere spullen die u graag binnen handbereik houdt.
Een perfecte balans tussen comfort, functionaliteit en genieten van het buitenleven.
Tevens is het mogelijke om uw auto hier te stallen.
De poort is handmatig en ook middels een loopdeur vanuit de achtertuin te bereiken.
Locatie
Deze woning ligt aan een rustige straat met voornamelijk bestemmingsverkeer.
U geniet hier van een kindvriendelijke omgeving, met winkels, scholen (zowel basis- als voortgezet onderwijs), sportvoorzieningen en openbaar vervoer binnen handbereik.
Dankzij de centrale ligging zijn steden als Venlo, Nijmegen en Eindhoven eenvoudig bereikbaar.
Het is een perfecte combinatie van rust en bereikbaarheid, ideaal voor gezinnen en forenzen.
Kortom een heerlijke plek om te wonen!


